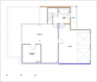
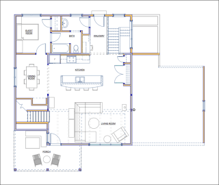
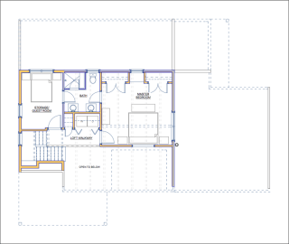
Here is the promised floor plan post, which should hopefully make some of those crazy framing pictures a bit easier to comprehend. You can click on these photos to make them bigger. North is toward the top of your screen in all of them; the river is on the south side of the house. Hope this helps!
BASEMENT LEVEL
MAIN LEVEL
UPPER LEVEL (LOFT)
(Floor plans courtesy of Steven Varnum, a.k.a. House Genius)



Very cool. What are the numbers inside the divided diamond/circles (starts at 1 in entryway and goes up to 49 in master suite)?
LikeLike
You know what Kelly… I still don't know. Those have been mystifying me for months, but I keep forgetting to ask. I will let you know if I figure it out!!
LikeLike